Tulip

Priced From: 600,000's

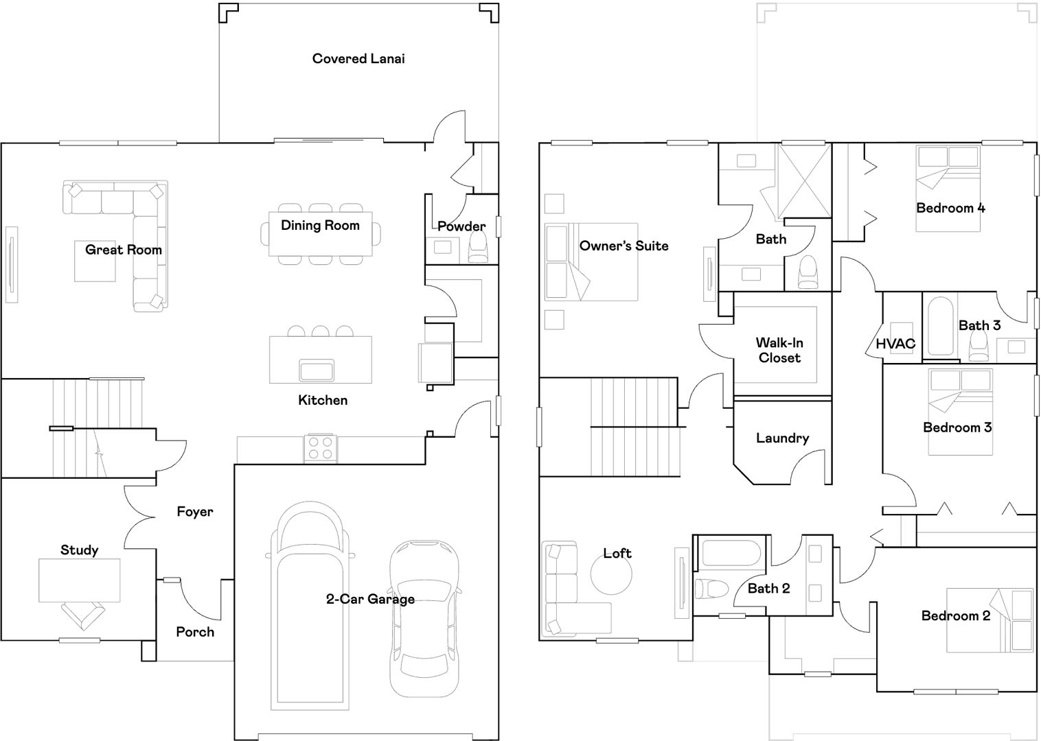
Square feet icon SQUARE FEET2,571
Bed icon BEDROOMS4
Bath icon BATHROOMS3.5
Garage icon GARAGE2

The first floor of this new two-story home is host to an inviting open-concept floorplan with access to a covered lanai for effortless entertaining, and a study is easily accessible off the foyer. Upstairs, four bedrooms surround a versatile loft, including the luxe owner’s suite with a spa-inspired bathroom and walk-in closet.

VIEW PHOTOS 360oTOUR

COLLECTION: Lennar 50

Interested in this
floorplan?

Please fill out the form below to receive more information.

Single Floorplan Contact
I'm a Realtor

By submitting, our homebuilder partners will contact you with exciting updates, news and exclusive announcements.