3575F

Priced From: 950,000's

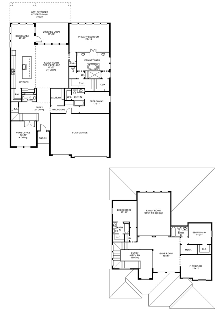
Square feet icon SQUARE FEET3,575
Bed icon BEDROOMS4
Bath icon BATHROOMS4.5
Garage icon GARAGE3

The front porch opens into the entryway with a 21-foot ceiling. French doors lead into the home office overlooking the front yard. A private guest suite with a full bathroom and walk-in closet is located off the main entry. The family room boasts a wall of windows. An island with built-in seating connects the space to the kitchen, which also features a walk-in pantry. The corner dining area is embraced by two walls of windows and allows access to the backyard covered lanai. Off the family room is the primary bedrooms which offers ample light from the wall of windows overlooking the backyard. Double doors lead into the bathroom which boasts dual vanities, a garden tub, glass enclosed shower, and two walk-in closets. Upstairs you are greeted by a large game room that overlooks the first floor. Secondary bedrooms each having their own private bathrooms and a flex room complete the second level. The laundry room and drop zone are located off the three-car garage.

COLLECTION: Perry 60

Interested in this
floorplan?

Please fill out the form below to receive more information.

Single Floorplan Contact
I'm a Realtor

By submitting, our homebuilder partners will contact you with exciting updates, news and exclusive announcements.